房屋介绍
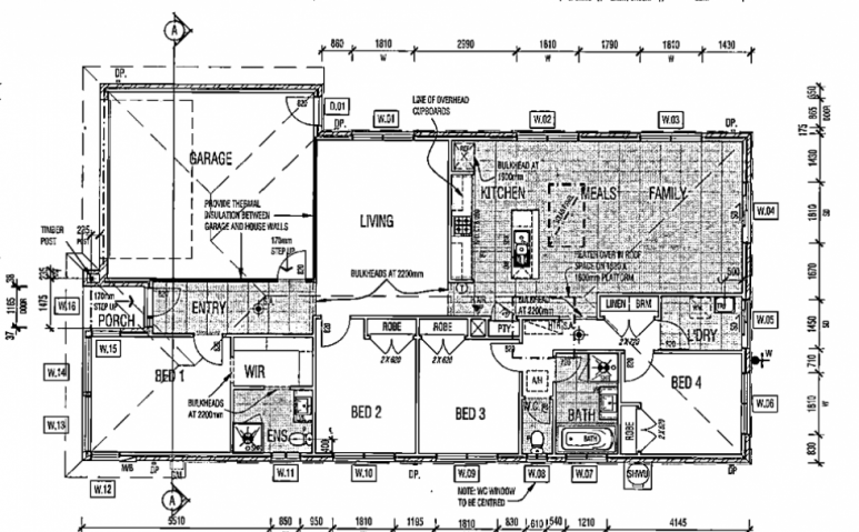
全新独立宽敞的家庭别墅,分离式客厅和餐厅打造两独立空间给全家人享受,让每位家庭成员都能拥有自己最舒适的娱乐空间。四间宽敞房间,主卧室规划有独立衣帽间和卫浴设备,每间房间皆有大型窗户,采光充足且舒适。独立式后院隐密性高,让您亦能自然享受户外时光。
全新独立宽敞的家庭别墅,分离式客厅和餐厅打造两独立空间给全家人享受,让每位家庭成员都能拥有自己最舒适的娱乐空间。四间宽敞房间,主卧室规划有独立衣帽间和卫浴设备,每间房间皆有大型窗户,采光充足且舒适。独立式后院隐密性高,让您亦能自然享受户外时光。

