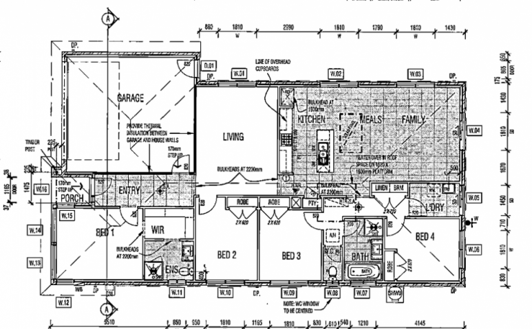
Property description
This home presents ample space inside for kicking back or entertaining. The four bedrooms form the heart of this home, with the master bedroom offering both an ensuite and walk-in robe. The girls will love drinks and nibbles in the family/meals zone, while the boys watch the footy on the big scree


