房屋介绍
总体规划社区旨在创造生活,学习,工作和娱乐的田园环境。在墨尔本蓬勃发展的西部的Mambourin,我们正在与最聪明的人一起设想一个类似城市的便利社区,距离您可能需要的所有设施只有几分钟的路程。一个更鼓舞人心的自然环境,促进健康和活力。有趣的文化,发现和学习,为未来准备的家庭。总而言之,这是一个构思,考虑和创造的地方,以确保全面的生活方式。
方便
- Werribee CBD以西6km
- 墨尔本CBD西南45km
- 吉朗CBD东北45km
- 距温德姆谷火车站3km
- Mambourin火车站
- Mambourin镇中心
这个未来的中心拥有25,000平方米的零售空间,可能包括咖啡馆,餐馆,超市,专卖店和电影院。
- Mambourin当地商业区
当地商业区将提供一系列商业和住宅用途,包括办公室,零售和公民服务,医疗,儿童和老年护理设施,退休生活,中密度联排别墅和公寓。
发现
- Mambourin探索中心
随着未来咖啡馆的计划,这个临时销售和信息空间是您可以查询和描绘Mambourin愿景的地方。
- 拟议的预备12私立学校
- Mambourin社区中心
未来的温德姆市政厅社区中心将为当地人提供母婴健康服务,幼儿园,表演艺术中心和图书馆。
幸福
- Mambourin Residents Leisure Centre
仅限专属居民休闲中心的计划包括膝部和儿童游泳池,健身房,多功能运动场,多功能厅和咖啡厅,以及指定的未来活动和活动空间。
- 地区和社区公园
未来的地区和当地社区公园将为所有年龄段的游乐场和娱乐活动提供整个开发项目以及市中心。这些将由共用的步行/自行车道,烧烤/野餐庇护所和卫生间设施,以及建议的滑冰和篮球区以及休闲的踢球空间提供支持。
- 湿地
未来的湿地不仅包括天然水道,还包括人行天桥和甲板,以及定期与健身节点共用的步行和自行车道。
生活
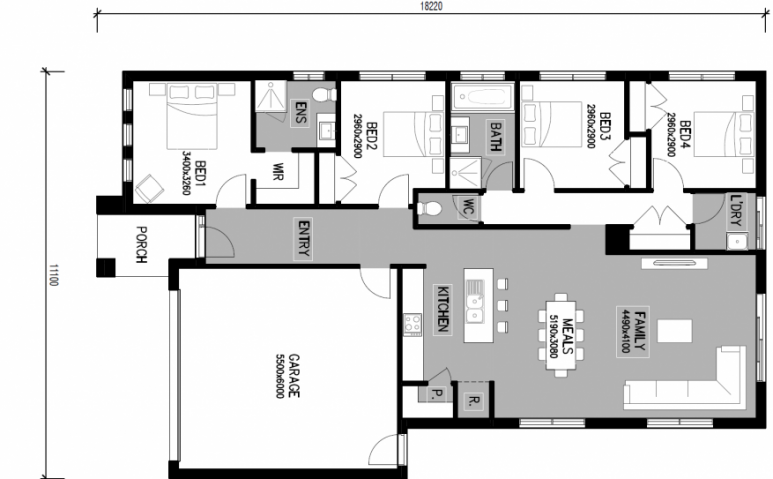
- 优质住房选择
建议的住房选择组合,规模和多样性,将为每个人提供一些东西。 虽然建立了Mambourin设计和选址指南以确保高质量的街景。
- 光纤到家
所有的Mambourin住宅都将通过Opticomm提供的光缆网络实现宽带服务。
未来
- 六星绿星社区
Mambourin通过瞄准澳大利亚绿色建筑委员会颁发的最高评级,有望实现世界领先地位。



