房屋介绍
A. 特色介绍:
• 位于市中心东南边19公里,邻近火车站,周围多处大型高尔夫球场、运动公园以及飞利浦海湾环绕,是喜爱健康生活形态者的绝佳选择。邻近的大型购物中心能充分满足生和及娱乐需求。
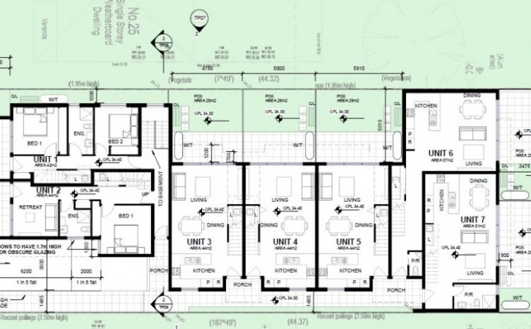
• 7户空间宽敞的联排别墅,每户拥有独立的进出口、花园及停车位,隐密性极佳。双层楼的开放式空间设计,最大化善用空间的每一寸角落,让每位成员轻松享受家庭的幸福时光。
• 此区交通及地理位置极佳,市场需求近平均值2倍,房价持续稳定增长。家庭是此区的主要人口族群,占将近50%,其馀近30%为专业独立人士,小型别墅是此区最受欢迎的居住型态,过去10年已有57%的增长,是追求稳定投资不可错过的绝佳机会。
B. 周围环境及交通设施
• 交通:步行300公尺可至Cheltenham火车站,25分钟直达South Yarra购物商圈,35分钟直达市区,20分钟达Frankston知名海摊。
• 购物:3分钟车距可达Westfield Southland及DFO购物中心和Kingston购物广场,流行商店、电影院、各式美食餐厅及超市应有尽有,一次满足生活所需。
• 学校:多所当地小学环绕,包含Cheltenham , Cheltenham East, Le Page, Kingston Health公立小学, Our Lady of the Assumption Parish 教会小学,以及 Cheltenham和Sandringham中学。
• 其他生活机能:直径范围1公里内有4处的青葱公园,车距10分钟内有多处运动公园,包括Kingston health, Victoria, Cheltenham and Rooyal Melbourne高尔夫球场, Kingston Heath 足球场及Capital运动公园。开车3分钟车距内有Ultra健康中心,10分钟有Sandringham大型医院。


